Omakotitalo
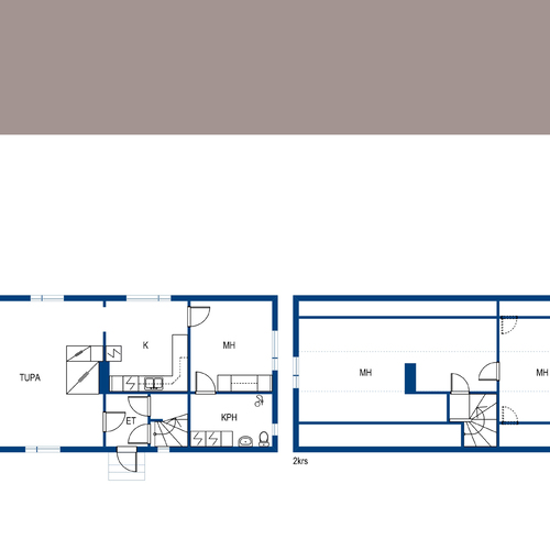
Omakotitalo tupa/keittiö +mh + kph/wc + Yläkerrassa 2 mh
Hirsirunkoinen omakotitalo (87 m²) vanhan maatilan pihapiirissä, tilan koko 3 hehtaaria. Talossa ovat nykyaikaiset mukavuudet. Omakotitalo on rakennettu v.1952.
Talon laajennusosa on rossipohjalla, rakennettu v. 2017. Laajennusosassa sijaitsee makuuhuone sekä lattialämmityksellä kph /wc.
Talon vesikate, lisäeristeet seiniin ja ulkoverhous ovat uusittu vuonna v.2017.
Lämmitys puuhella, leivinuuni ja ilmalämpöpumppu sekä sähkö.
Talon pihapiirissä on 15 x6 navettarakennus, jonka päädyssä ovat ulkosauna ja oleskelutilat.
Pihapiirissä sijaitsevat myös aittarakennus, savusaunan hirsikehikko ja lato.
Puutarhassa on runsaasti marjapensaita sekä pihapiirissä suurin osa on komeaa koivupuuta.
Täällä on mahdollisuus omavaraiseen elämään.
Kohde mahdollista myös vuokrata!
Varaa esittelyaika jo tänään!

Kohdetta myy

90120 Ouluoulu@ogz.fi044 494 5718
Esittely
Perustiedot
Joensuuntie 323
81570 Lieksa
Hinta ja kustannukset
Laskettu velattomasta myyntihinnasta.
Lisätiedot
PuukiuasUlkosauna navettarakennuksessa sekä pukuhuone ja oleskelutilat.
Uusittu jätevesijärjestelmä WehoPuts- täyttää nykyisen jätevesivaatimuksen.
Navetta osan ulkosauna ja oleskelutilat.
Lämmönjakotapa: sähköpatterilämmitys, uuni/takka, ilmalämpöpumppu
Porakaivo
WehoPuts on ympärivuotiseen käyttöön sopiva biologis-kemiallinen asumisjätevesien panospuhdistamo.
Asunnon tilat ja materiaalit
Lattian pintamateriaali: laminaatti
Keittiön tasot: laminaatti
Tuvan alla noin 4 m² kellari. Hirsiseinät.
Seinien pintamateriaali: muu
Lattian pintamateriaali: lauta
Mh 2 ja 3 ; Yläkerrassa, maalattu levylattia, seinä paneli/maali. Molemmin puolin avoimet alkovit.
Seinien pintamateriaali: maalattu, puu
Lattian pintamateriaali: laminaatti, muu
Varusteet: suihkuseinä, lattialämmitys, wc-istuin, suihku
Seinien pintamateriaali: kaakeli, puu
Lattian pintamateriaali: laatta
Katon pintamateriaali: Pelti
Asunnon tontti
Tekninen virasto
Hirsinen savusaunakehikko. Aittarakennus. Latorakennus, joka toimii autokatoksena ja varastona.

























