Omakotitalo
Vuonna 1952 rakennettu omakotitalo idylliseltä Korelan alueelta. Vain kilometrin päässä Langinkosken historiallinen ulkoilualue.
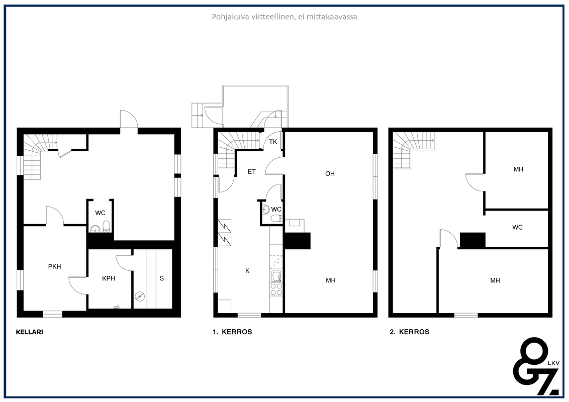
Asuintilat ovat kolmessa kerroksessa. Yläkerrassa on kaksi makuuhuonetta ja wc. Säilytystilaa on hyvin viistokaton alla. Sisääntulokerroksessa on keittiö, olohuone, makuuhuone ja wc. Kellarikerroksessa on kylpyhuone, sauna, kodinhoitotila ja huone, joka toimii tällä hetkellä makuuhuoneena.
Myyjät ovat kunnostaneet pintoja, vaihtaneet julkisivun mineriittilevyt puuvuoraukseen ja viimeisimmäksi tehneet terassin pihaan.
Pihaan mahtuu 2-3 autoa ja niitä varten on sähköpistokepaikat. Pihasta löytyy omenapuu, syreeni, tammi ja karviaispensas.
SOVI ESITTELYSTÄ VÄLITTÄJÄN KANSSA.
TIEDUSTELUT JA MYYNTI
Kirsi Ryyppö puh. 040 5895 723, kirsi@ogz.fi
Kohdetta myy

20100 Turkuinfo@ogz.fi050 386 8684
Esittely
Perustiedot
Hirventie 30
48230 Kotka
Epävirallisen rakennus- ja huoneistorekisteriotteen mukaan huoneistoala 65 m²,
kerrosala 115 m², kellarin pinta-ala 81 m² ja kokonaisala 196 m².
Hinta ja kustannukset
Laskettu velattomasta myyntihinnasta.
Lisätiedot
Sähkökiuas
2021 julkisivun mineriittivuoraus vaihdettu puulaudoitukseen, vaihdettu osaan katosta eristevillat,
2018 märkätilojen ja wc-tilojen remontin yhteydessä uusittu jäte- ja käyttövesiputkistot, keittiö uusittu, ilmalämpöpumppu asennenttu, hormit nuohottu, tehty salaojat (samassa yhteydessä piikattu talon kellariosan lattia auki ja vaihdettu uutta maa-ainesta sekä poistettu kivijalasta puukoolaukset ja tehty uudestaan kivijalan osaan kiviharkot ja jätetty ilmatilat,
2015 ikkunat uusittu (ei kellarikerros), 2011 katto uusittu Prima
Lämmönjakotapa: sähköpatterilämmitys
Asunnon tilat ja materiaalit
Pintamateriaalit: Alakerran makuuhuoneen lattia laminaattia. Yläkerran lattia maalattu lastulevy.
Seinien pintamateriaali: maalattu
Lattian pintamateriaali: laminaatti
Keittiön tasot: laminaatti
Liesi: induktio, erillisuuni
Lattian pintamateriaali: laminaatti
Makuuhuoneiden määrä: 3
Seinien pintamateriaali: kaakeli
Lattian pintamateriaali: laatta
WC-tilojen määrä: 3
Seinien pintamateriaali: maalattu
Lattian pintamateriaali: betoni
Varusteet: sälekaihtimet/rullaverhot, verhotangot, naulakko, kiinteät valaisimet, lämminvesivaraaja, ilmalämpöpumppu, istutukset
Katon pintamateriaali: Pelti
Asunnon tontti
560,50 € / v
Kotkan kaupunki
Muut lisätiedot
Päiväkodit: Metsolan Päiväkoti noin 1 km
Palvelut: Lähikauppa K-market noin 500 m, K-Citymarket Kotka noin 4 km