Omakotitalo
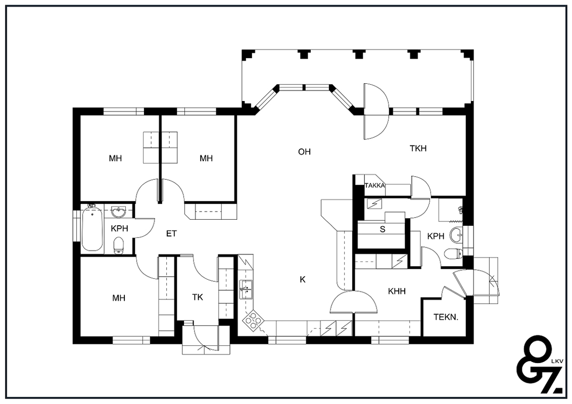
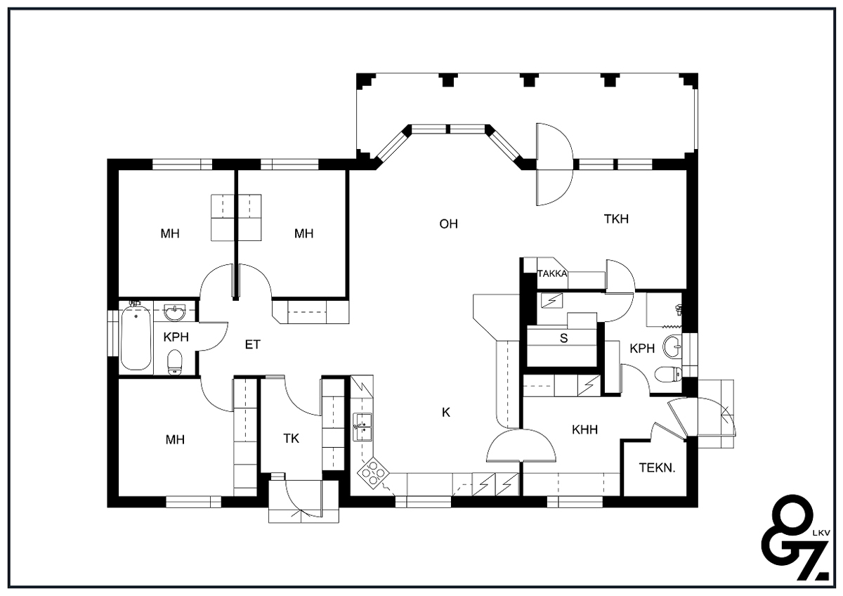
Nyt mahdollisuus hankkia tilava yhdessä tasossa oleva kolmen makuuhuoneen omakotitalo suositulta ja rauhalliselta Kaakkurin alueelta. Tämä komea valkoinen lohkotiiliverhoiltutalo on valmistunut 1990. Talossa on erkkerillinen, valoisa olohuone ja siihen liittyvä keittiö. Olohuoneen vieressä on takkahuone, josta kulku pesuhuoneeseen ja takapihan terassille. Pesuhuoneesta ovi kodinhoitohuoneeseen ja sieltä myös ovi ulos talon päädystä. Makuuhuoneet ovat talon toisessa päädyssä ja niiden välissä on erillinen wc, jossa myös suihku ja poreamme.
Takapihan laidassa on suurikokoinen autotalli, jossa on varaus erilliselle huoneelle omalla sisäänkäynnillä terasseineen. Talossa on lämmitysmuotona kaukolämpö ja koneellinen ilmanvaihto, lisäksi keittiön yhteydessä on leivinuuni ja takkahuoneessa takka.
Alueelta ovat hyvät kulkuyhteydet kaupungin suuntaan ja Kaakkurin kauppakeskus on alle kilometrin etäisyydellä. Myös päiväkoti ja koulut ovat lähietäisyydellä.
Tähän kokonaisuuteen kannattaa ehdottomasti tulla tutustumaan paikan päälle.
Otat vaan yhteyttä ja varaat esittelyajan itsellesi ja perheellesi.
Lisätiedot ja esittelyt:
Jarmo Heikkinen LKV 0505286420
jarmo@ogz.fi 
Kohdetta myy

90120 Ouluoulu@ogz.fi044 494 5718
Esittely
Perustiedot
Lapinrauniontie 16
90420 OULU
Hinta ja kustannukset
Laskettu velattomasta myyntihinnasta.
Lisätiedot
Puukiuas
Lämmönjakotapa: vesikiertoinen patterilämmitys
Hyvä
Asunnon tilat ja materiaalit
Seinien pintamateriaali: kaakeli, maalattu
Lattian pintamateriaali: laminaatti
Keittiön tasot: laminaatti
Liesi: muu, induktio
Lattian pintamateriaali: laminaatti
Lattian pintamateriaali: laminaatti
Makuuhuoneiden määrä: 3
Seinien pintamateriaali: kaakeli
Lattian pintamateriaali: laatta
Seinien pintamateriaali: kaakeli
Lattian pintamateriaali: laatta
WC-tilojen määrä: 1
Seinien pintamateriaali: maalattu
Lattian pintamateriaali: laatta
Katon pintamateriaali: Tiili
Katon kunto: Hyvä
Asunnon tontti
1 104,20 € / v
Oulun kaupunki

































